Fotogalerie Bachtobelstrasse

IMG
IMG
.0 IMG
IMG
IMG
IMG
IMG
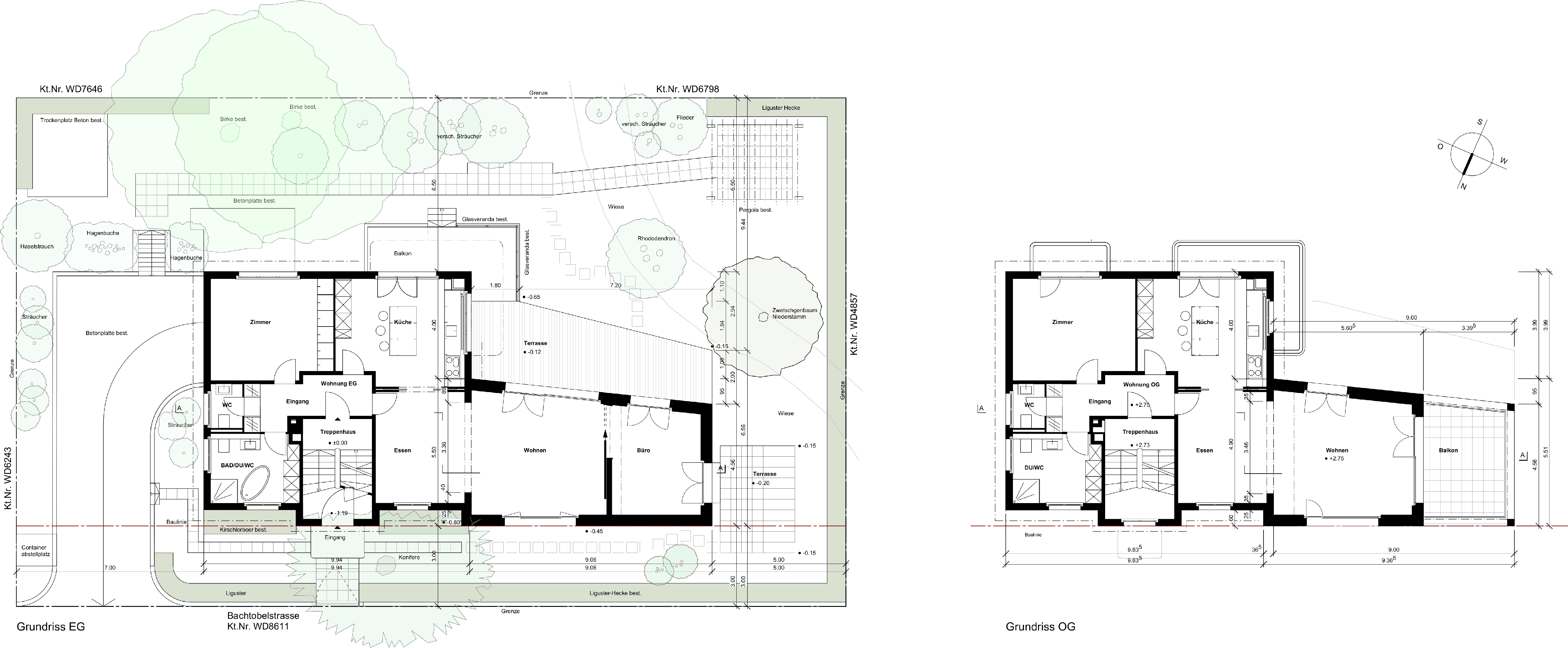
-www.Grundriss
IMG
IMG
IMG
IMG
IMG
IMG
IMG
IMG
-www.SchnittFassaden
IMG
IMG