Bibliothek Hedingen
Ersatzneubau
Schul- und Gemeindebibliothek
Adresse: 8908 Hedingen
Bauherrschaft: Privat
Ausführung: April 2013 – April 2014
Zusammenarbeit: Nigg Architektur Zürich
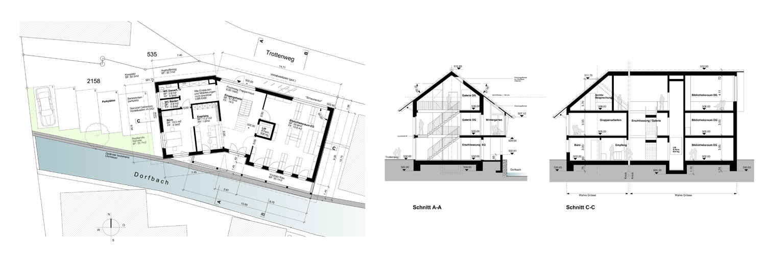
Ausgangs-Situation
Mitten in der Kernzone der Gemeinde Hedingen steht das grosse Wohnhaus mit Scheune Chabel, das im Jahr 1870, nach einem Brand wieder aufgerichtet wurde. Der markante Baukörper mit abgewinkeltem Giebel und vielseitigen kleineren und grösseren Anbauten prägt den Dorfkern. Vor dem Haus führt eine viel zu Fuss begangene Achse zwischen Wohnquartier und Bahnhof durch, hinter dem Haus fliesst der Dorfbach.
Der Dorfteil steht im Inventar «schutzwürdiger Ortsbilder von überkomunaler Bedeutung». In einem intensiven Prozess mit der Denkmalplege wird anhand von alten Fotos und Architekturmodellen entschieden, welche Baukörper zum ursprünglichen Haus gehören und welche Anbauten man weglassen kann. Die bereinigten Barameter geben die Mantelmasse für den Ersatzneubau an.