• Florastrasse 18
  • Florastrasse18 3
  • Florastrasse18 3
  • Florastrasse18 4
  • Florastrasse18 5
  • Florastrasse18 6
  • Florastrasse18 Plan02
  • Florastrasse18 Plan01

Florastrasse 18


Umbau, Gesamtrenovation und Umnutzung eines denkmalgeschützten Objektes


Büros, Mietwohnung, Stiftungssitz



Adresse: Florastrasse 18, 8610 Uster
Bauherrschaft: Stiftung Ritter – Hürlimann
Ausführung: März – Dezember 2000
Zusammenarbeit: Nil Hürzeler Architektur AG, 8703 Erlenbach



Ausgangs-Situation

Die Stifterin möchte Räume für kulturelle Anlässe errichten. Im Speziellen für Kammermusik und Kunstausstellungen.
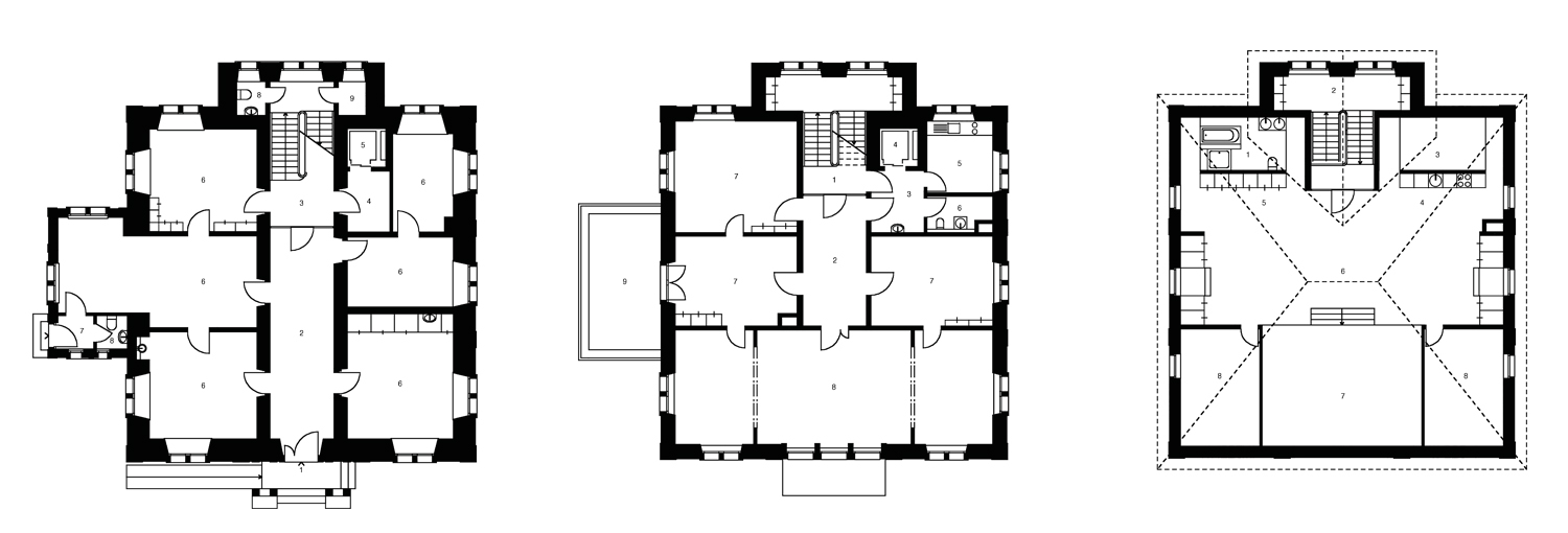
Die Fabrikantenvilla aus dem Jahre 1830 ist Teil der Spinnereigeschichte der Stadt Uster. Der strenge, symmetrische Grundriss mit einem Korridor als Achse und links und rechts davon angeordneten Zimmern, zieht sich durch die drei Vollgeschosse und den Mansardenstock. Das Erd- und das erste Obergeschoss werden von Wohnungen zu Büroräumlichkeiten umgenutzt und sanft renoviert. Beim Rückbau kommen wunderbare Tafelparkette, massive Sandsteinplatten und farbige Tapeten zum Vorschein.
Die zweite Etage ist für die Stiftung vorgesehen. Die Räumlichkeiten werden für Ausstellungen und Kammerkonzerte umgestaltet. Der kleinteilig strukturierte Mansardenstock mit den ehemaligen Bedienstetenzimmern wird zu einer offenen, grosszügigen Loftwohnung umbaut. Aufgrund von Vorgaben der Denkmalpflege müssen die Dachlukarnen in der jetzigen Form erhalten bleiben und können nicht durch zusätzliche Dachaufbauten vergrössert werden. Von aussen schlecht sichtbare Glasziegelfelder im Kreuzgiebel bringen das fehlende Licht dennoch in den Raum.