Bachtobelstrasse
Umbau Mehrfamilienhaus mit Erweiterung im Garten
Eigenheim und Mietwohnungen
Adresse: Bachtobelstrasse
Bauherrschaft: Privat
Ausführung: 2015-2016
Beschrieb
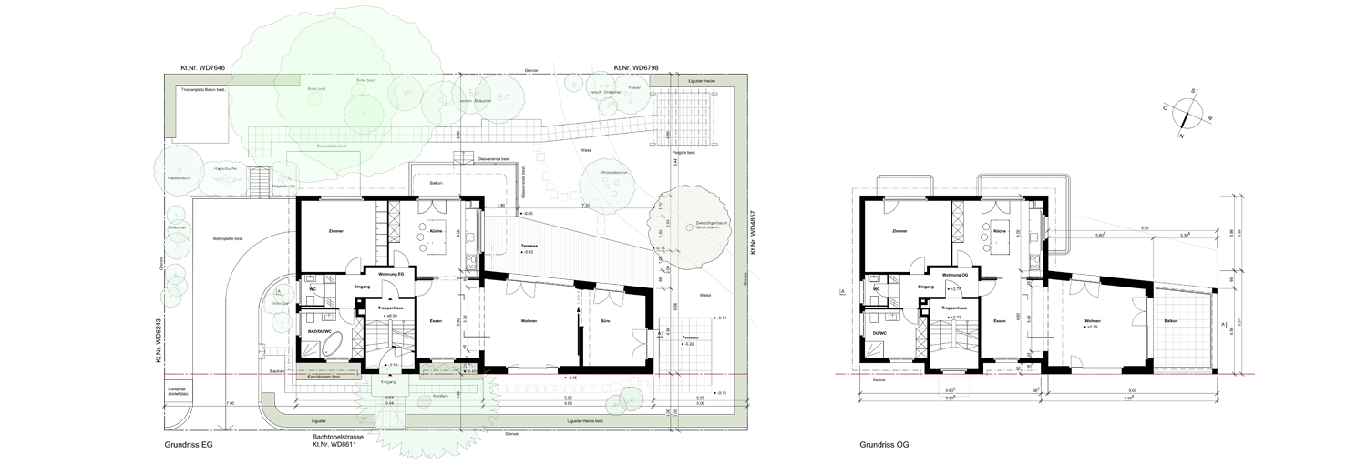
Das Dreifamilienhaus mit Mansardendach aus dem Baujahr 1938 liegt an der Bachtobelstrasse. Die Strasse führt senkrecht den Berg hinauf, links und rechts säumen verwunschene Gärten mit altem Baumbestand, Obstbäume und Sträucher, den Strassenzug. Die noch beinahe komplette Streusiedlung mit kleineren und grösseren Häusern für den Mittelstand gebaut, liegt auf einer Moräne unterhalb des Uetlibergs. Links und Rechts wurde einmal im grossen Stil Tonerde für die Ziegellei Zürich abgebaut.
Nach verschiedenen Expertiesen entscheidet sich die Bauherrschaft, das Volumen, das man bei diesem Umschwung mittels eines Neubaus verdoppeln könnte, so zu belassen, wie es ist, aber mit einem Anbau zu erweitern.
Der Anbau wurde auf dem Grundstück so plaziert, dass er am Bestand andockt, gegen die Strasse abschirmt, aber im Süden den Garten möglichst grosszügig belässt.
Die drei Stockwerkswohnungen werden umstrukturiert. Auf der Südseite die neue Küche mit Esszimmer und im Anbau ein grosszügiges Wohnzimmer mit Gartenzugang oder Terrasse. Auf der Nordseite, ehemals Küche, werden die Nasszellen und Schlafzimmer eingerichtet.
Der Anbau ist ein Holzelementbau, gefertigt in der Zimmerei. Die Elemente werden auf der Baustelle innert Tagen aufgerichtet.